Bifamiliare in vendita

Giaglione, Frazione san giuseppe
€ 55.000
7 locali 7 locali
227 Mq 227 Mq
3 bagni 3 bagni

Bifamiliare in vendita

Giaglione, Frazione san giuseppe

Descrizione annuncio

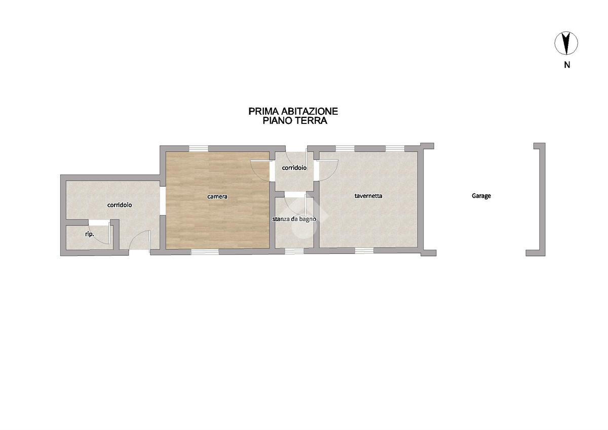
A Giaglione si propone fabbricato bifamiliare con sviluppo su tre livelli fuori terra e piano interrato, composto da due unità abitative distinte. Il piano terra e il primo piano sono collegati da scala interna e costituiscono la prima unità, caratterizzata da finiture originali anni ’70. L’alloggio è dotato di infissi in legno con doppio vetro e di impianto di riscaldamento autonomo alimentato da GPL tramite termoconvettori. La distribuzione interna comprende cucina, due camere, tavernetta e doppi servizi. Al piano interrato sono presenti tre cantine, utili come locali di deposito o per eventuali esigenze accessorie.

Il secondo piano ospita un bilocale con accesso indipendente dall’esterno tramite terrazzo privato. L’unità è stata oggetto di interventi di ristrutturazione negli anni 2000 relativi a pavimentazioni, bagno e serramenti, ma risulta non completamente ultimata, offrendo la possibilità di completamento secondo le proprie esigenze.

La copertura è stata rifatta alla fine degli anni ’90.

L’area esterna comprende cortile, box auto con accesso idoneo a vetture di piccole dimensioni, magazzino/capanno attrezzi e terreno adibito a frutteto di circa 400 mq. All’interno della proprietà è installata la bombola GPL dedicata all’alimentazione del sistema di riscaldamento. A breve distanza sono presenti ulteriori terreni (circa 700 mt) compresi nella vendita.

L'accesso carraio alla proprietà avviene attraverso due traverse della strada principale, la cui larghezza di manovra si limita ad auto e vetture di piccole e medie dimensioni.

Mostra tutto

Nelle vicinanze

Trasporto pubblico Trasporto pubblico
Trasporto pubblico
2,9 Km
stazione di Chiomonte
stazione di Chiomonte
2,9 Km
Giaglione
Giaglione
60 m
Trasporto pubblico
490 m
Scuole Scuole
Scuola di Musica M° Alessandro Chiamberlando
130 m
Scuola Elementare M° Paolo Gras
260 m
Scuola media Bartolomeo Giuliano
2,4 Km
Liceo ginnasio Norberto Rosa
2,5 Km
Scuola dell'infanzia di Susa
2,8 Km
Farmacia Farmacia
Della Betta
2,0 Km
Farmacia Canavoso
2,8 Km
Farmacia Profumeria Moncenisio
2,8 Km
Farmacia Dell'Asilo
2,9 Km
Supermercati Supermercati
Crai
2,8 Km
Negozi Negozi
Panificio Regis
440 m
Olivero
1,5 Km
Marzo
1,8 Km
Primaluna
2,6 Km
Favro
2,6 Km
Bar Bar
Bar dou Clòo
430 m
Gaute la Nata
1,9 Km
Caffè di Città
2,7 Km
Smile
2,8 Km
Mignon
2,9 Km
Ristoranti Ristoranti
Cré Seren
300 m
Ristoranti
1,2 Km
Ristorante Pizzeria da Bruna
1,5 Km
Da Candida
1,8 Km
Country Club della Stellina
2,2 Km
Mostra tutto

Caratteristiche

Rif.:
61143315
Piano:
Su più livelli di 3
Totale piani:
3
Box:
1
Posti auto:
2
Balconi:
2
Mostra tutto
Prezzo Prezzo
€ 55.000
Rata mutuo Rata mutuo
€ 259 / mese
Spese annue Spese annue
€ 0
Proponi il tuo prezzoProponi il tuo prezzo

Classe Energetica

D
D
D
D
D
D
D
D
D
EP globale non rinnovabile:
569.80 kW h/m² anno
EP globale rinnovabile:
2151.00 kW h/m² anno
EP invernale del fabbricato:
EP estiva del fabbricato:
Anno di costruzione:
1900
Riscaldamento:
Autonomo
Tipo impianto:
Ad aria
Tipo alimentazione:
GPL

Ti interessa visionare l'immobile?

Fissa un appuntamento  Fissa un appuntamento

Richiedi informazioni

Clicca su Leggi per aprire l'informativa
* Questi campi sono obbligatori

Calcola il tuo mutuo

Semplice e senza impegno
Anticipo

( % )
Mutuo

( % )

pochi semplici passi

inserisci i tuoi dati
Questionario completato
Grazie per aver richiesto un appuntamento senza impegno con un nostro Consulente del Credito e Assicurativo.

Hai inserito correttamente tutti i dati necessari e a breve riceverai una e-mail con un link da convalidare per inviare i tuoi dati.
Affiliato
Immobiliare Segusium Sas
Via Mazzini, 14 10059 Susa (TO)

Il nostro staff


  • Daniele Crisafi
    Affiliato

  • Cristian Rossero
    Collaboratore
Via Mazzini, 14 10059 Susa (TO)
Zona: Susa
Mostra su mappa
Orari: Dal lunedì al sabato = mattino 9.30-13.00 - pomeriggio 15.00-20.00. Domenica chiuso
Affiliato
Immobiliare Segusium Sas
Via Mazzini, 14 10059 Susa (TO)

2026 Tecnocasa Franchising S.p.A. - P. IVA 08365160152 - Via Monte Bianco 60/A 20089 Rozzano (MI). Ogni agenzia ha un proprio titolare ed è autonoma. Privacy policy | Policy utilizzo | Cookie policy